4e van Mozart
Uitbouw en een tuinkamer voor een jarendertigwoning
2021 - 2023
De bewoners houden van hun tuin. Dat is zelfs de aanleiding geweest dat ze elkaar hebben ontmoet en van elkaar zijn gaan houden. Hun vraag aan ons, om meer ruimte om te kunnen koken en te leven op de begane grond, hebben wij daarom ruimer geïnterpreteerd. We hebben een ontwerp gemaakt dat hen nog meer laat genieten van de prachtige tuin die ze zelf hebben aangelegd en onderhouden. Het ontwerp brengt hun dagelijkse routine de tuin in.
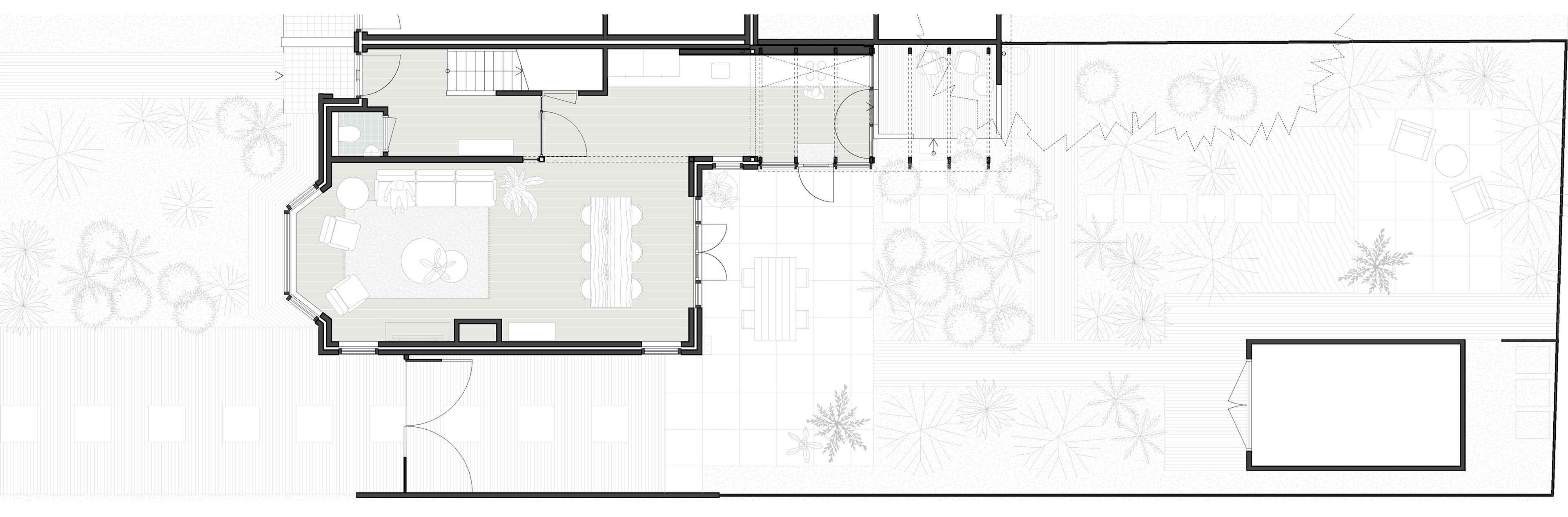
In de bestaande situatie was er een kleine keuken, gescheiden van de woonkamer via de entreehal. Een typische indeling voor een jarendertigwoning. Achter de keuken stond op een paar meter afstand een tuinschuur. Het ontwerp behelst een drietal ingrepen.
Ten eerste is de strikte scheiding tussen entreehal, woonkamer en keuken opengebroken. Vanaf de entree biedt een witte stalen pui doorzicht naar de woonkamer en keuken. Andersom is er nu ook uitzicht op de stijlvolle hal en trap - zoals de bewoners het noemen: "een sieraad voor je woonkamer." De woonkamer en de nieuwe keuken staan nu in een open verbinding tot elkaar. 
Ten tweede is de keuken uitgebreid naar de tuin. De uitbouw wordt gevormd door een reeks eikenhouten portalen. Deze constructie geeft ritme. Dat ritme ontstaat enerzijds in de ruimte binnen en anderzijds aan de gevel buiten. In het dak is een lichtstraat opgenomen, wat zorgt voor een lichte werkplek in de keuken en bovendien de houten portalen goed doet uitkomen. Vanuit de keuken loop je zo naar buiten, óf het terras op, óf direct de tuinkamer in. 
Tot slot is in het verlengde van de keuken een tuinkamer gemaakt. De bestaande tuinschuur is hiervoor niet gesloopt, maar juist hergebruikt door de fundering en delen van de muren te laten staan. De houten portalen en het dak lopen door, óver de restanten van de voormalige tuinschuur heen. De tuinkamer heeft geen gevel en is dus in de buitenlucht. De plek is iets verhoogd en biedt beschutting tegen regen en wind, maar ook tegen een brandende zomerzon. Hier zit je het hele jaar door lekker in de tuin, te midden van alle begroeiing.

In samenwerking met maak<architectuur (architect), Prefit (aannemer) en Houting bouwconstructies (constructeur).
Het doorzagen van gebouwen zoals Gordon Matta-Clark dat deed, gaf inspiratie voor het hergebruik van de bestaande berging als tuinkamer.
Bron: Arte y Arquitectura: Building Cuts, Gordon Matta Clark; 18 dec 2011. ArchDaily en Español.
Back to Top