Bio-based van paardenstal tot atelier
Een bio-based ontwerp voor de herbestemming van een oude paardenstal tot kledingatelier en gastenverblijf
2022-2024
Na een ingrijpende renovatie en uitbouw van landhuis De Vlashorst is ook de paardenstal herbestemd tot atelier en gastenverblijf. Hiervoor is een bio-based ontwerp gemaakt, dat wil zeggen met natuurlijke en hernieuwbare materialen, liefst van lokale komaf. Daarbij is vooral ingezet op het gebruik van kalkhennep.
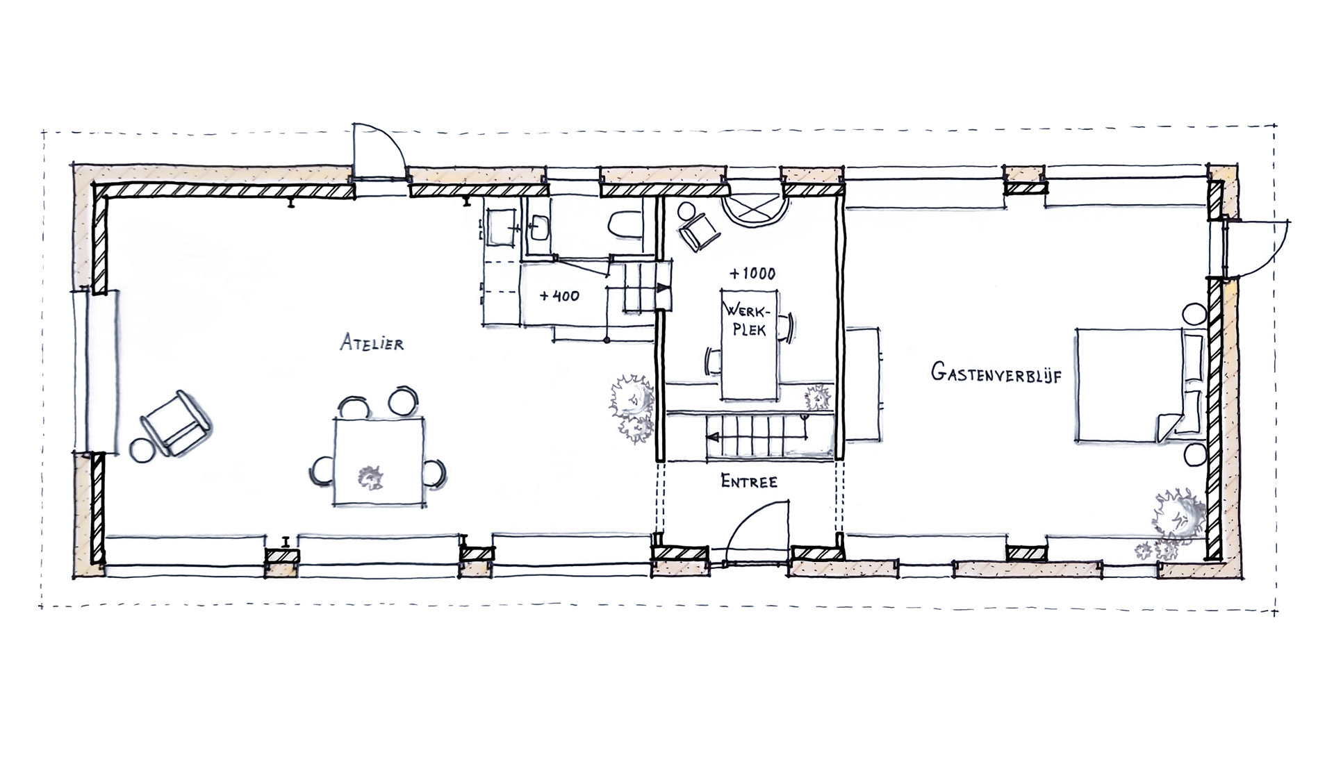
Ruimtelijk en functioneel wordt de voormalige paardenstal in tweeën gedeeld: enerzijds een atelier voor kledingontwerp en anderzijds een gastenverblijf. Het atelier is gericht op ontvangst en op de straat, het gastenverblijf is privé en gericht op het landschap. De tweedeling is ingegeven door de bestaande structuur. Daar waar voorheen de halfverdiepte wijnkelder was, zijn nu de entree en een werkplek op verhoogd niveau, met daaronder opslagruimte.
De bestaande metselwerkgevel wordt aan de buitenzijde ingepakt met kalkhennep. Kalkhennep isoleert goed, is damp-open en past bij de landelijke uitstraling. Het is een eenvoudig toe te passen materiaal en geschikt voor renovatie. Dit zijn slechts enkele van de vele voordelen van kalkhennep. De vloer wordt volledig vernieuwd en geïsoleerd. Ook hier wordt kalkhennep toegepast, bovenop een vochtwerende schelpenvloer en afgewerkt met een gladde kalkvloer.

Ontwerp in samenwerking met maak<architectuur, Anna van der Aar (interieur) en Bouwbedrijf Renswoude (aannemer)

toestand voor de renovatie

slooptekening

ontwerp voor de begane grond

ontwerp voor het souterrain

Impressie van het nieuwe atelier.

Aan het werk met een proefopstelling voor een kalkhennepmuur.

Proefopstelling voor een kalkhennepmuur.

Ontwerpsessie op locatie met de opdrachtgevers.
Back to Top